For Sale Crete, Georgioupoli €295,000
7,634sqm plot
210sqm building capacity
Approved 150sqm villa license
2.8kms from Georgioupolis
1.9kms from Lake Kournas
23kms from Rethymno
41kms from Chania
Seize the opportunity to own a remarkable 7,634.26 sqm plot, ideally located near the picturesque village of Georgioupoli. With a building capacity of up to 210 sqm, this plot includes an approved license for a 150 sqm, two-floor villa with a pool, providing you with significant savings in both time and money.
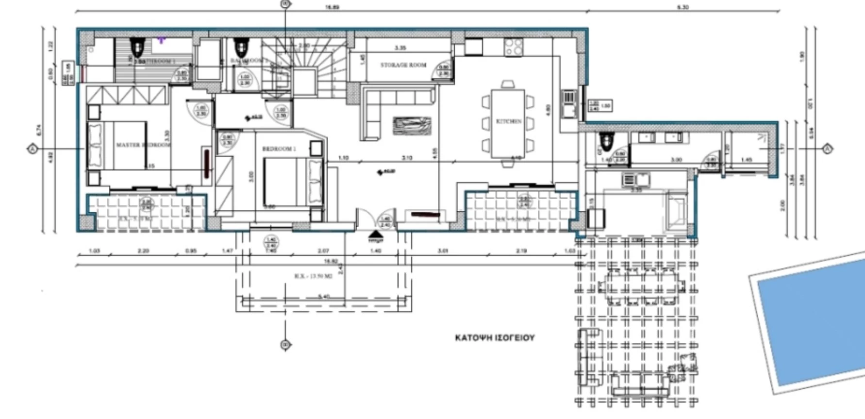
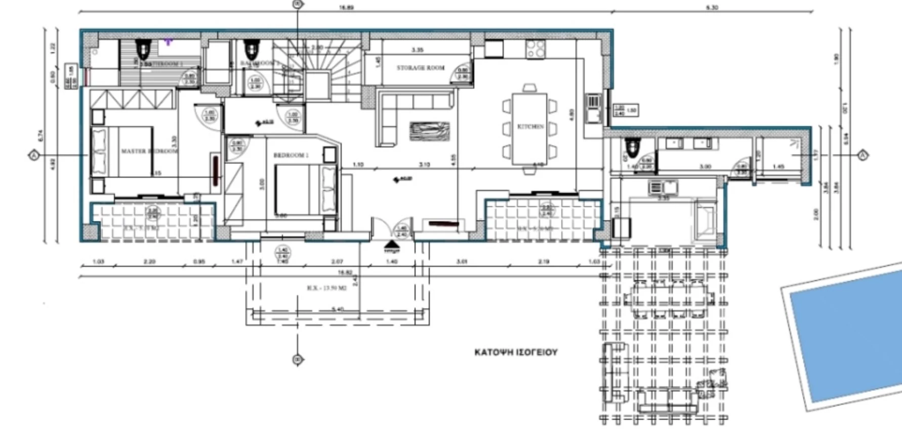
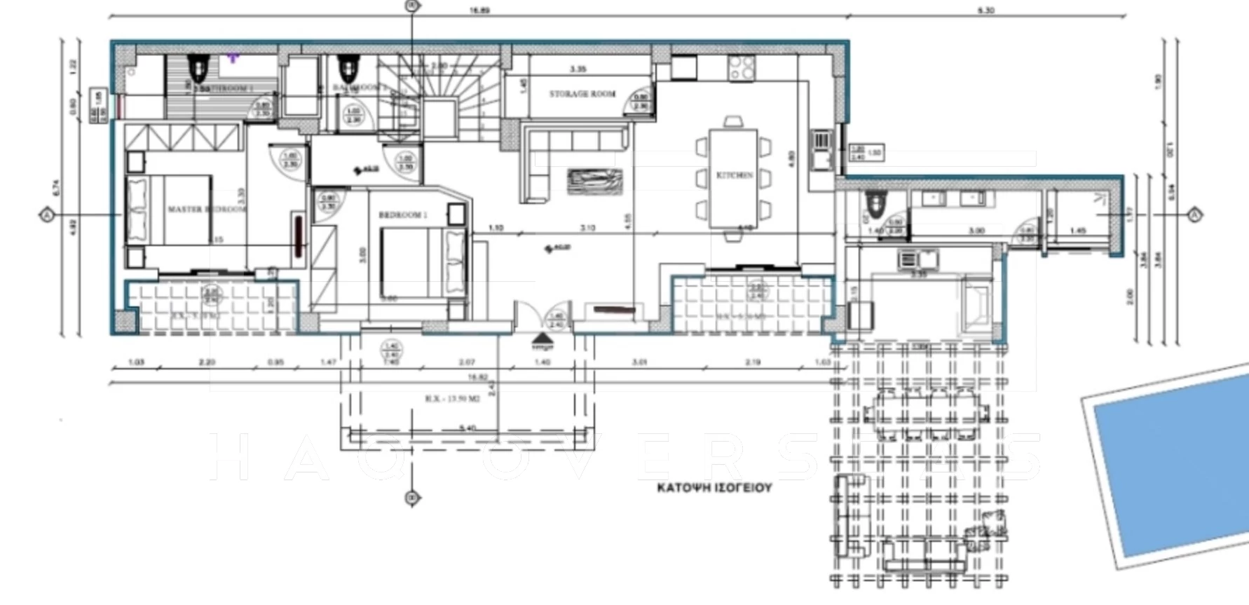
The villa’s plans feature 4 spacious bedrooms, 4 bathrooms, a large kitchen, dining area, living area, an independent utility room, a barbecue area, and expansive terraces, ensuring both comfort and luxury in your future home. Please reach out for more information about the floor plans.
About the Location
From the plot’s lower to higher points, you’ll enjoy stunning, unobstructed sea views, providing a breathtaking backdrop for your future home. The location is incredibly convenient, just 2.8 km from Georgioupoli, a village offering all essential amenities. You’re also only minutes away from Crete’s beautiful north coast, with renowned beaches such as Georgioupolis, Peristeras, and Kalyvaki, famous for their crystal-clear waters.
For nature enthusiasts, the famous Lake Kournas is just 1.9 km away, perfect for hydrocycling and exploration. The plot is strategically located only 23 km from Rethymno and 41 km from Chania, two of Crete’s most vibrant cities.This plot is an ideal setting to build your private villa, offering tranquility, stunning views, and excellent investment potential.
IMPORTANT NOTICE FROM HAQ OVERSEAS LTD
Descriptions of the property are subjective and are used in good faith as an opinion and NOT as a statement of fact. Please make further specific enquires to ensure that our descriptions are likely to match any expectations you may have of the property. We have not tested any services, systems or appliances at this property. We strongly recommend that all the information we provide be verified by you on inspection, and by your Surveyor and Conveyancer.







































